2 casas contemporáneas y con vista al mar en preventa








US$ 450,000
- 3,423 ft²
- / 318 m²
- 3+ Dormitorios
- 3+ Baños
ID Propiedad3096
- vistas al mar
- Playa Bonita
Te gusta ?
COMPÁRTELO








Descripción
Ocean Edge se complace en presentar este nuevo desarrollo de 2 casas con vista al mar y a la costa de Las Terrenas.
Cada casa cuenta con 3 dormitorios y 3 baños, con la posibilidad de agregar un cuarto dormitorio y baño en el piso inferior por un costo adicional de 25,000 USD
La casa se encuentra en un lote privado de 500 m².
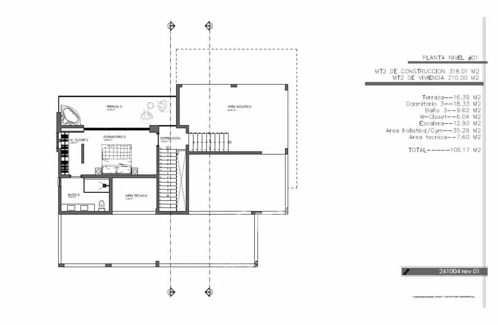
Planos de planta:

La construcción incluye:
- Cocina e isla en cemento pulido o en marmolina
- Baños acabados en cemento pulido o en marmolina
- Piscina infinity
- Jardín interior y pozo de luz
- Aire acondicionado en las habitaciones
- Inversor con baterías
- Barandales de vidrio en las terrazas
- Pisos de cerámica (diferentes opciones de colores)
- Madera de cigua para puertas interiores
Plazos de construcción y Plan de pago:
- 10.000 US$ a la reserva
- 15% al momento de la firma del contrato de Promesa de Venta
- 30% al inicio de las obras (3 meses después de la firma)
- 30% al finalizar las obras grises (6 meses después del inicio de la construcción)
- 20% a la instalación de las puertas y ventanas (5 meses después de la etapa anterior)
- 5% en la entrega de la casa (2 meses después)
Tiempo total desde los permisos de construcción hasta la entrega: 16 meses
Ocean Edge recomienda este proyecto como una gran oportunidad para que un constructor experimentado construya la casa de sus sueños y con espléndidas vistas al océano.
Contacta a Julien Para más información: +1 829 672 1907
DESTACAR
Constructor experimentado | Vista al mar | Diseño moderno
Comodidades
swimming pool
parking
air conditioning
inverter
A/C pre installation
laundry room
terrace
ubicación
2 casas contemporáneas y con vista al mar en preventa
US$ 450,000
- 3,423 ft² /
- 318 m²
- 3+ Dormitorios
- 3+ Baños
Te gusta ?
ID Propiedad 3096
- vistas al mar
- Playa Bonita
COMPÁRTELO
BUSCAR POR TIPO DE PROPIEDAD
BUSQUE SU PREVENTAS POR TIPO DE UBICACIÓN
¿Prefiere construir su villa personalizada?
¿No encontraste casas en venta que se ajusten a tus necesidades? ¿Por qué no construir una nueva villa en el lugar de su elección?
Haga clic a continuación para obtener más información sobre la construcción
¿NO PUEDES ENCONTRAR LO QUE ESTÁS BUSCANDO?
Solicite una investigación inmobiliaria gratuita. Danos los detalles sobre la propiedad que estás buscando y un miembro de nuestro equipo investigará el mercado por ti y te enviará una selección correspondiente a tus demandas.